Toimitilan Veikkointie 20 tiedot:

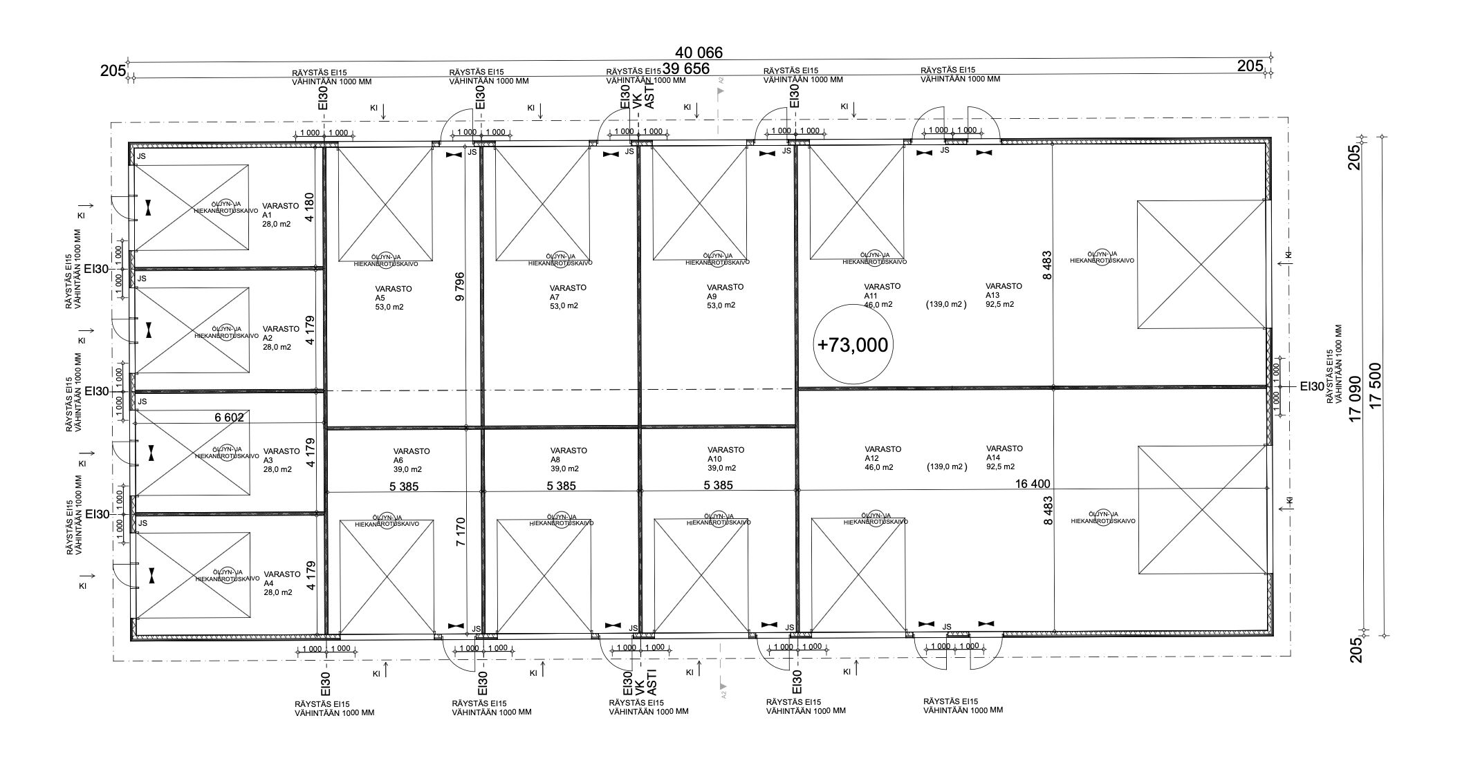
Uusia tuotanto- ja varastotiloja – valmistuu keväällä 2026 Vuokrattavana uusia, rakenteilla olevia tuotanto- ja varastotiloja, jotka valmistuvat keväällä 2026. Tilat soveltuvat hyvin monipuoliseen yritystoimintaan. Keskeiset ominaisuudet: - Sisäkorkeus 5,4 m - Nosto-ovet päädyssä, koko 4,5 x 4,5 m - Nosto-ovet pitkällä sivulla, koko 3,3 x 4,5 m - Erilliset käyntiovet - Isot omat pihatilat, helppo liikkua myös rekalla - LED-valaistus - Ilmalämpöpumput Jokaisen nosto-oven kohdalla hiekan- ja öljynerotuskaivo Sosiaalitilat varauksena – toteutus sovitaan vuokrasopimuksen mukaan Tilakoot: 28 m², 39 m², 53 m², 92 m², 184 m², 276 m² ja 329 m² Tilojen pohjaratkaisu on muunneltavissa: väliseiniä voidaan jättää pois ja tilat yhdistää yrityksesi tarpeen mukaan. Huomio: Tilat eivät ole vuokrattavissa puhtaasti autopesulatoimintaan, mutta rakenteet kestävät myös likaisempaa ja raskaampaa käyttöä. Valmistuminen kevät 2026 – nyt on oikea hetki varata ja vaikuttaa tilan toteutukseen.

Kuva toimitilasta
  • Osoite: Veikkointie 20, 03100 Vihti
  • Tyyppi: Liiketila, Teollisuustila, Varastotila
  • Pinta-ala: 28,00m2 - 329,00m2
  • Kauppatapa: Vuokrattavana
  • Vuokrattavana
  • Hinnan lisätiedot: Ei alv tietoa